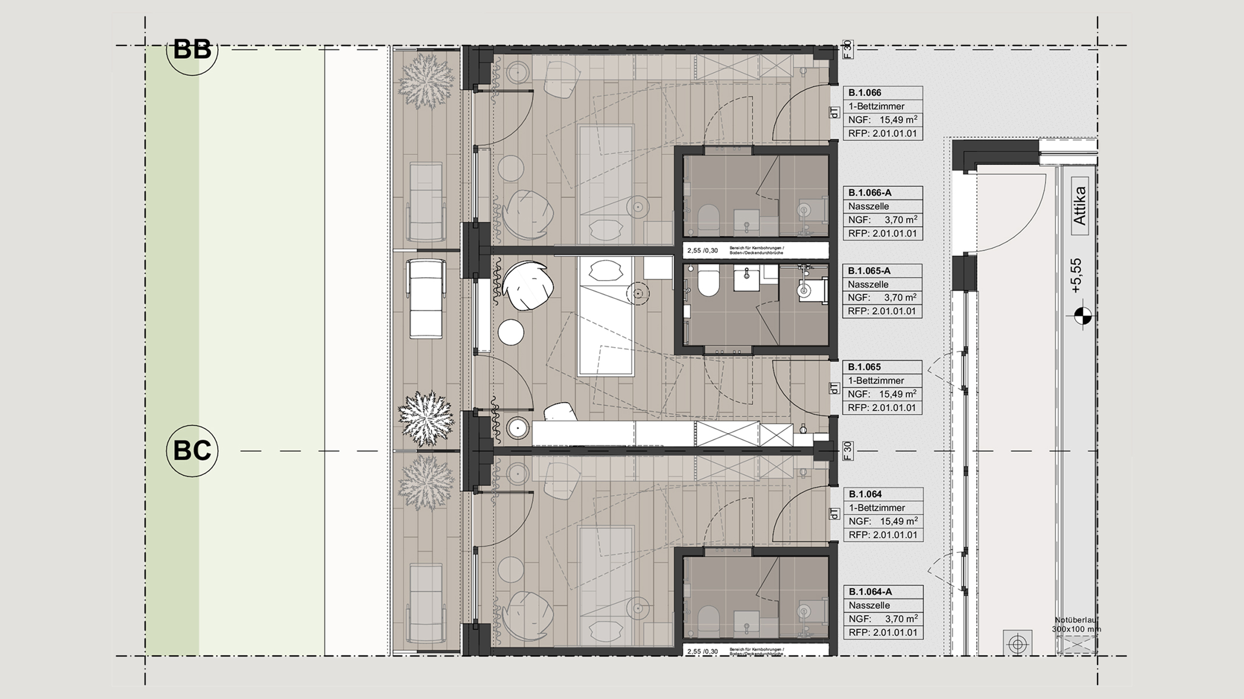
Innenarchitektur Patientenzimmer – Reha-Zentrum
Unser Gestaltungskonzept für das Patientenzimmer im Reha-Zentrum zeigt, wie Innenarchitektur zu einer angenehmen, gesundheitsfördernden Umgebung beitragen kann. Natürliche Farben, wohnliche Materialien und der direkte Blick ins Grüne schaffen eine Atmosphäre der Ruhe und Geborgenheit.
Großzügige Fensterflächen lassen viel Tageslicht in den Raum und schaffen eine offene, freundliche Raumatmosphäre. Ergänzt wird das Konzept durch ergonomische Möblierung, funktionale Details und eine klare Raumstruktur, die sowohl Orientierung als auch Komfort bieten. So entsteht ein Umfeld, das Regeneration unterstützt und den Aufenthalt für Patient:innen spürbar aufwertet.
Impressionen
Lassen Sie uns Ihre Idee realisieren
Mehr als 1185+ Projekte durften wir bereits begleiten und umsetzen.
Erzählen Sie uns von Ihrer Idee.












